Projects
Upcoming project by Arabtech Constructions at Alappakam.
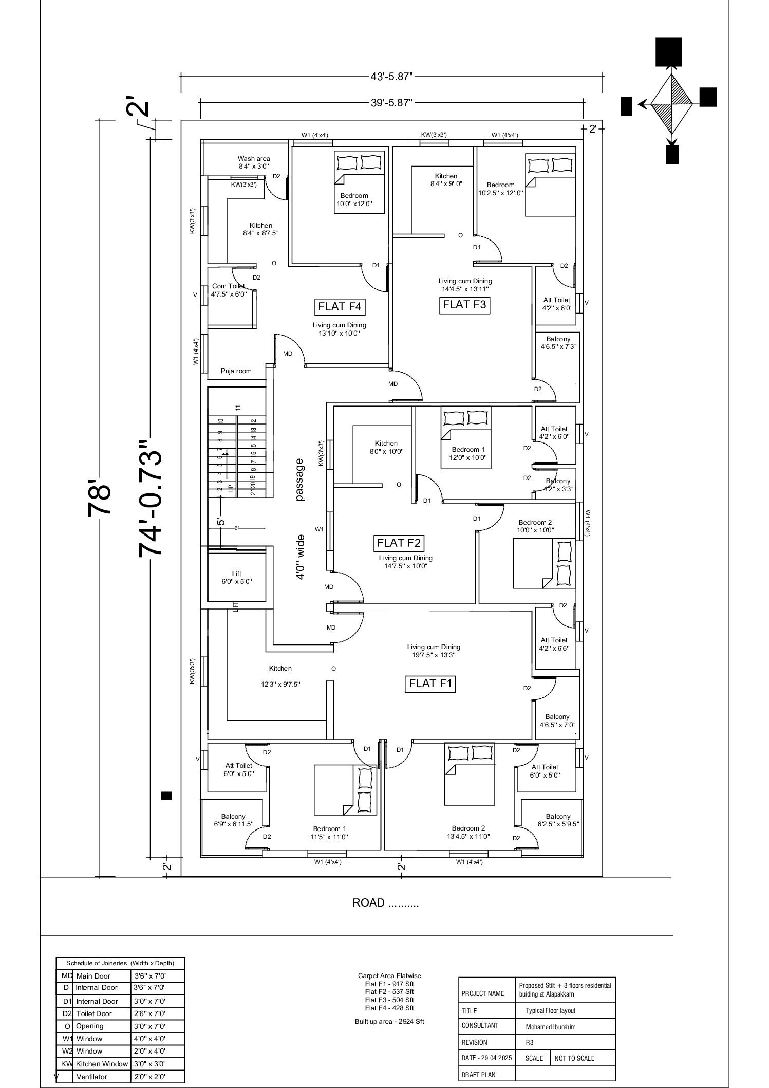
Arabtech Constructions announces an upcoming residential project at Alappakam, featuring a Stilt + 3 floor structure with a total of 8 units. Designed with modern planning, quality construction standards, and efficient space utilization, the project aims to deliver comfortable living spaces in a well-connected location. More details will be shared soon.
Recent Posts
admin0 Comments
Upcoming Project by Arabtech Constructions at Pammal
admin0 Comments